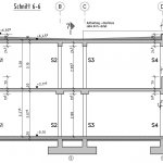
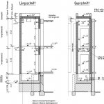
Begegnungsstätte

Cuvrystraße 13 - 15, Berlin-Kreuzberg

  • Umbau und Instandsetzung im Bestand (STAKA-Decken) für neue Sanitärräume
  • Anbau Aufzugschacht aus Stahlbeton-Fertigteilen (Barrierefreiheit)
  • Anbau als offener Grundriss mit langen Fensterbändern und auskragendem OG
  • „schwebende Stahltreppe“ als zweiter Rettungsweg

Bauherr
Bezirksamt Friedrichshain-Kreuzberg

Architekt
Rother, Architekten Designer

Bauweise
Stahlbeton, Stahl, Mauerwerk

Leistungen
Tragwerksplanung Lph 1-6,
Feuchtegutachten, EnEV
Anbau/Umbau

Fertigstellung
2015

 

 

 

 

 

 

Wir nutzen Cookies auf unserer Website. Wir verwenden keine Tracking Cookies. Sie können selbst entscheiden, ob Sie die Cookies zulassen möchten. Bitte beachten Sie, dass bei einer Ablehnung womöglich nicht mehr alle Funktionalitäten der Seite zur Verfügung stehen.