Umbau + Anbau Gymnasium Haus E

Ellernweg 20/22  Berlin-Johannisthal

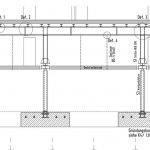
  • Einbau eines Mehrzweckraumes im EG durch Entfernen von tragenden Längswänden auf einer Länge von 18 m
  • Ersatz durch Verbundstützen und Abfangungen der Obergeschosse
  • Rückbau der Fassade im Flurbereich der Giebelseite und
  • Anbau Aufzug als Stahlkonstruktion (Barrierefreiheit)
  • Vordächer aus Stahl/Glas


Bauherr
Bezirksamt Treptow-Köpenick

Architekt
Altmann & Selle Architekten

Bauweise
Stahlbeton, Stahlverbund, Mauerwerk, Stahl

Leistungen
Tragwerksplanung Lph 1 – 6, EnEV Neubau

Fertigstellung
2008

 

 

 

 

 

 

 

 

Wir nutzen Cookies auf unserer Website. Wir verwenden keine Tracking Cookies. Sie können selbst entscheiden, ob Sie die Cookies zulassen möchten. Bitte beachten Sie, dass bei einer Ablehnung womöglich nicht mehr alle Funktionalitäten der Seite zur Verfügung stehen.